【伸縮器系列】
【傳力接頭系列】
【防水套管系列】
【補償器系列】
【橡膠接頭系列】

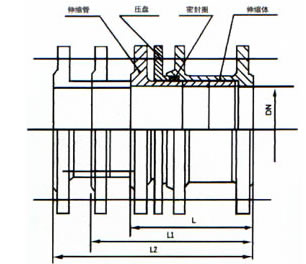
SSQ型鑄鐵伸縮器也稱伸縮節、膨脹節、補償器、伸縮接頭。伸縮器在一定范圍內可軸向伸縮,也能在一定的角度內克服管道對接不同軸向而產生的偏移,能極大的方便閥門管道的安裝與拆卸,在管道允許伸縮量中可以自由伸縮,一旦越過其最大伸縮量就起到限位,確保管道的安全運行。
SSQ型鑄鐵伸縮器主要為保障管道安全運行,具有以下作用:補償吸收管道軸向、橫向、角向熱變形;吸收設備振動,減少設備振動對管道的影響;吸收地震、地陷對管道的變形量。
SSQ型鑄鐵伸縮器也稱伸縮節、膨脹節、補償器、伸縮接頭。伸縮器在一定范圍內可軸向伸縮,也能在一定的角度內克服管道對接不同軸向而產生的偏移,能極大的方便閥門管道的安裝與拆卸,在管道允許伸縮量中可以自由伸縮,一旦越過其最大伸縮量就起到限位,確保管道的安全運行。
SSQ型鑄鐵伸縮器主要為保障管道安全運行,具有以下作用:補償吸收管道軸向、橫向、角向熱變形;吸收設備振動,減少設備振動對管道的影響;吸收地震、地陷對管道的變形量。
鑄鐵伸縮器詳細介紹:
1、鑄鐵伸縮器 該產品為各種給排水管道、水塔、水泵、水表、閥門的安裝拆換提供了極大方便,給長距離管路因溫差伸縮起到了很好的調節作用。
2、鑄鐵伸縮器 該產品內管材分為鑄鐵( HT )、鍍鋅( DX )和鋼制( SF )三種。工作壓力分 PN6 、 PN10 、 PN16 三種。
3、鑄鐵伸縮器安裝前須松開壓盤螺栓,將該產品拉至安裝長度,然后用對角法擰緊,切勿壓偏,如架空使用,兩端須安裝相應的固定支架。
4、鑄鐵伸縮器 法蘭連接采用 GB4216.3 - 4126.5 標準。
5、鑄鐵伸縮器如選用其它規格可另行生產。
SSQ型鑄鐵伸縮器使用范圍:
由于伸縮器具有良好的綜合性能,所以它廣泛用于化工、建筑、給水、排水、石油、輕重工業、冷凍、衛生、水暖、消防、電力等基礎工程。
SSQ型鑄鐵伸縮器作用:
SSQ型鑄鐵伸縮器在一定范圍內可軸向伸縮,也能在一定的角度內克服管道對接不同軸向而產生的偏移,能極大的方便閥門管道的安裝與拆卸,在管道允許伸縮量中可以自由伸縮,一旦越過其最大伸縮量就起到限位,確保管道的安全運行。
SSQ型鑄鐵伸縮器安裝注意事項:
1、伸縮器在安裝前應先檢查其型號、規格及管道配置情況,必須符合設計要求。
2、對帶內套筒的伸縮器應注意使內套筒子的方向與介質流動方向一致,鉸鏈型伸縮器的鉸鏈轉動平面應與位移轉動平面一致。
3、需要進行“冷緊”的伸縮器,預變形所用的輔助構件應在管路安裝完畢后方可拆除。
4、嚴禁用伸縮器變形的方法來調整管道的安裝超差,以免影響伸縮器的正常功能、降低使用壽命及增加管系、設備、支承構件的載荷。
5、安裝過程中,不允許焊渣飛濺到波殼表面,不允許波殼受到其它機械損傷。
6、管系安裝完畢后,應盡快拆除伸縮器上用作安裝運輸的黃色輔助定位構件及緊固件,并按設計要求將限位裝置調到規定位置,使管系在環境條件下有充分的補償能力。
7、伸縮器所有活動元件不得被外部構件卡死或限制其活動范圍,應保證各活動部位的正常動作。
8、水壓試驗時,應對裝有伸縮器管路端部的次固定管架進行加固,使管路不發生移動或轉動。對用于氣體介質的伸縮器及其連接管路,要注意充水時是否需要增設臨時支架。水壓試驗用水清洗液的96氯離子含量不超過25PPM。

技術參數:
|
公稱通徑
|
最小長度L
|
安裝長度L1
|
最大長度L2
|
|
40
|
140
|
170
|
200
|
|
50
|
140
|
170
|
200
|
|
65
|
160
|
205
|
250
|
|
80
|
180
|
225
|
270
|
|
100
|
200
|
250
|
300
|
|
125
|
220
|
250
|
300
|
|
150
|
220
|
270
|
320
|
|
200
|
240
|
290
|
320
|
|
250
|
260
|
315
|
370
|
|
300
|
280
|
340
|
400
|
|
350
|
290
|
350
|
410
|
|
400
|
300
|
360
|
420
|
|
450
|
320
|
385
|
450
|
|
500
|
320
|
385
|
450
|
|
600
|
350
|
415
|
480
|
|
700
|
370
|
440
|
510
|
|
800
|
390
|
460
|
530
|
|
900
|
420
|
495
|
570
|
|
1000
|
440
|
515
|
590
|
|
1200
|
490
|
570
|
650
|
|
1400
|
520
|
605
|
690
|
|
1600
|
550
|
640
|
730
|
|
1800
|
590
|
680
|
770
|
|
2000
|
630
|
720
|
810
|
|
2200
|
670
|
760
|
850
|
|
2400
|
710
|
800
|
890
|
|
2600
|
750
|
840
|
930
|
|
2800
|
290
|
880
|
970
|
|
3000
|
840
|
920
|
1010
|
|
3200
|
880
|
960
|
1050
|
|
3400
|
920
|
1000
|
1090
|